The investor's wish was a smaller house with two floors, compact, economical. The house is built to form a barrier between the road in the west and its own garden.
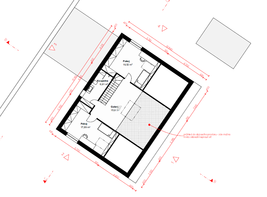
The layout was conceived as a generous ground floor with living space, bedroom and main facilities; floor as a quiet zone with two rooms and a small bathroom. Because the floor is smaller in area than ground floor, the mass of the house recedes to top. The concept of an asymmetrical roof was chosen from several variants.The northern part of the roof is steeper with minimum of window openings.
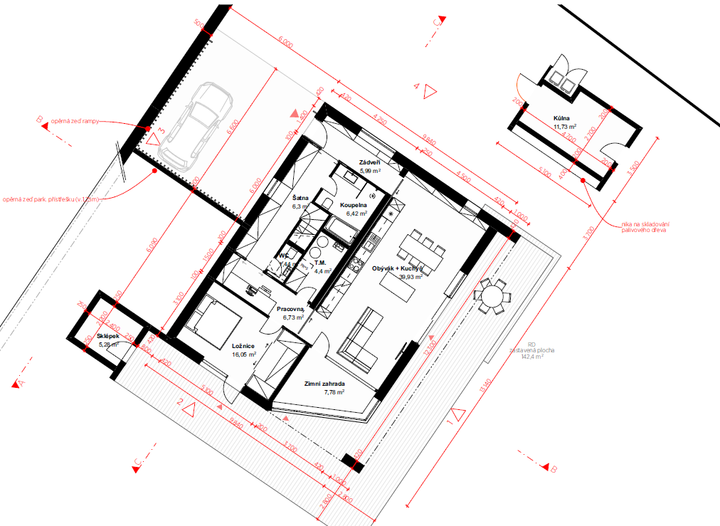
Ground floor - The core in the middle of the layout contains bathroom, toilet and utility room is. Thanks to that it is possible walk around the ground floor. Parts of the layout can be closed with sliding walls to be used separately as a cloakroom, study and vestibule. In the largest space there is a generous living area with high elevation. Generous glazing is designed for visual contact with the garden, views to the landscape. There are also heat gains from the sun in the colder season year from southeast and south. The winter garden is located in the southernmost corner of the house - in the summer protects the house, in the cold part of the year it will be the sunniest area, which will be warmed even in the early spring the sun.
The layout was conceived as a generous ground floor with living space, bedroom and main facilities; floor as a quiet zone with two rooms and a small bathroom. Because the floor is smaller in area than ground floor, the mass of the house recedes to top. The concept of an asymmetrical roof was chosen from several variants.The northern part of the roof is steeper with minimum of window openings.
Ground floor - The core in the middle of the layout contains bathroom, toilet and utility room is. Thanks to that it is possible walk around the ground floor. Parts of the layout can be closed with sliding walls to be used separately as a cloakroom, study and vestibule. In the largest space there is a generous living area with high elevation. Generous glazing is designed for visual contact with the garden, views to the landscape. There are also heat gains from the sun in the colder season year from southeast and south. The winter garden is located in the southernmost corner of the house - in the summer protects the house, in the cold part of the year it will be the sunniest area, which will be warmed even in the early spring the sun.
Přání investora byl menší dům s dvěma patry, kompaktní, úsporný.
Dům je postaven tak, aby tvořil bariéru mezi silnicí na západě a vlastní zahradou.
Dispozice byla pojata jako velkorysé přízemí s obytným prostorem, ložnicí a hlavním zázemím; patro jako klidová zóna se dvěma menšími pokoji a malou koupelnou. Protože je patro plošně menší, hmota domu do patra ustupuje. Z několika variant byl zvolen koncept asymetrické střechy, která se od zahrady k západu postupně zvyšuje. V interiéru vzniká převýšený obytný prostor a v nejvyšší části je využita jako podkroví pro pokoje. Střecha u zahradního průčelí díky nižšímu sklonu a nízko položenému okraji tvoří plynulejší přechod domu do zahrady a tvar střechy tak kopíruje částečně i tvar terénu. Severní část střechy je strmější a obrací se k příjezdové komunikaci zády s minimem okenních otvorů.
V přízemí je hlavní jádro koupelny, wc a technické místnosti je uprostřed dispozice a díky tomu je možné procházet dispozicí kolem něj. Posuvnými stěnami lze části prostoru uzavřít a prostor okolo jádra užívat odděleně jako šatnu, pracovnu a zádveří. V největším prostoru je umístěn velkorysý obývací prostor s kuchyní a zimní zahradou. Jsou navržena velkorysá zasklení, což umožňuje vizuální kontakt se zahradou, dálkové pohledy do krajiny i tepelné zisky energie ze slunce v chladnějším období roku od jihovýchodu a jihu. Zimní zahrada je umístěna do nejjižnějšího rohu domu - v létě bude při vhodném clonění tvořit
nárazníkovou zónu v období veder, naopak v chladné části roku bude nejslunnějším prostorem, který se ohřeje i v předjarním
slunci. Ložnice je umístěna na jihozápad a kryta od příjezdu přirozenou hmotou terénu a zídky.
Dispozice byla pojata jako velkorysé přízemí s obytným prostorem, ložnicí a hlavním zázemím; patro jako klidová zóna se dvěma menšími pokoji a malou koupelnou. Protože je patro plošně menší, hmota domu do patra ustupuje. Z několika variant byl zvolen koncept asymetrické střechy, která se od zahrady k západu postupně zvyšuje. V interiéru vzniká převýšený obytný prostor a v nejvyšší části je využita jako podkroví pro pokoje. Střecha u zahradního průčelí díky nižšímu sklonu a nízko položenému okraji tvoří plynulejší přechod domu do zahrady a tvar střechy tak kopíruje částečně i tvar terénu. Severní část střechy je strmější a obrací se k příjezdové komunikaci zády s minimem okenních otvorů.
V přízemí je hlavní jádro koupelny, wc a technické místnosti je uprostřed dispozice a díky tomu je možné procházet dispozicí kolem něj. Posuvnými stěnami lze části prostoru uzavřít a prostor okolo jádra užívat odděleně jako šatnu, pracovnu a zádveří. V největším prostoru je umístěn velkorysý obývací prostor s kuchyní a zimní zahradou. Jsou navržena velkorysá zasklení, což umožňuje vizuální kontakt se zahradou, dálkové pohledy do krajiny i tepelné zisky energie ze slunce v chladnějším období roku od jihovýchodu a jihu. Zimní zahrada je umístěna do nejjižnějšího rohu domu - v létě bude při vhodném clonění tvořit
nárazníkovou zónu v období veder, naopak v chladné části roku bude nejslunnějším prostorem, který se ohřeje i v předjarním
slunci. Ložnice je umístěna na jihozápad a kryta od příjezdu přirozenou hmotou terénu a zídky.